Property Details
Flawlessly crafted, this award-winning, architecturally designed apartment in the sought-after "Drift" by Mosaic promises sophisticated living in an idyllic coastal setting. Offering maximum lifestyle and minimal maintenance, this blue-chip residence with ocean views is just metres from the beach and a short stroll to Coolum's shops, cafés, and restaurants.
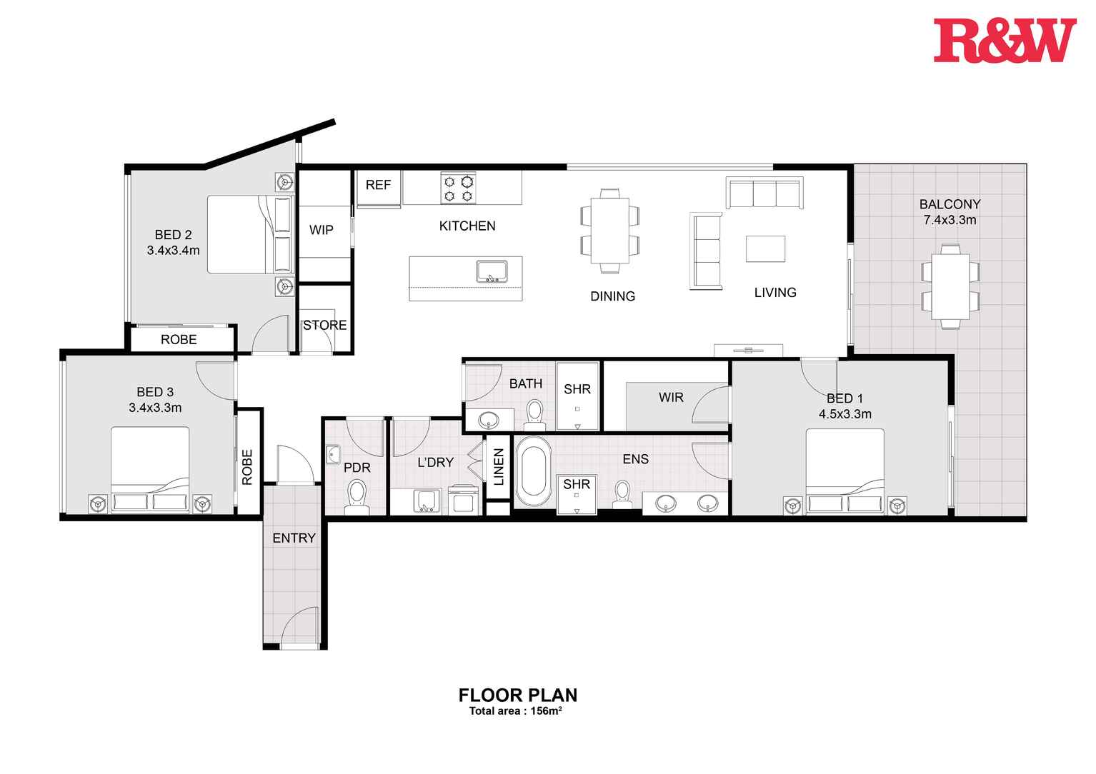
Boasting a prized north-easterly aspect, this home is flooded with natural light and cooled by gentle sea breezes. The residence features three generous bedrooms, with the master bedroom incorporating a large ensuite with a bathtub, shower, and walk-in robe. The home also includes a spacious open-plan kitchen, living, and dining area, a separate laundry, second bathroom plus powder room, ceiling fans, a spacious balcony with stunning ocean views, and secure basement parking for two vehicles plus a large storage shed.
Designed by well-known local architect OGE Group, a range of premium features are incorporated, including ducted air-conditioning, app controlled with individual sector management, ceiling fans, an induction cooktop, walk-in pantry, Smeg kitchen appliances, phoenix quality tap wear, high quality sound proof ceramic tile flooring with extra sound absorbent tile underlay, soundproof glass sliding doors, a double-gated entrance into the residence, and additional storage throughout.
Residents of "Drift" on Coolum enjoy access to communal facilities, including an in-ground resort pool set in sub-tropical native gardens, bike storage, lifts throughout, an outdoor shower, two built-in outdoor kitchens with tables, a spacious sundeck and lounge area, and direct access to the beachfront on David Low Way. This exclusive development by the award-winning Mosaic Group has attracted the attention of high-end buyers across the nation.
Summary of Features:
• Ocean views, just metres from the beach
• Architecturally designed and located in the award-winning "Drift" by Mosaic complex
• Secure basement parking for two vehicles plus a large storage shed
• Three large bedrooms, two bathrooms
• Spacious open-plan kitchen, living and dining area
• Quality kitchen with an induction stovetop, walk-in pantry, phoenix quality tap-wear and Smeg appliances
• Spacious balcony overlooking the pool
• Master bedroom with a large ensuite featuring a shower, bathtub and walk-in robe
• Built-in laundry and ample storage
• Ducted air-conditioning with individual sector management, shared complex solar providing discounts, sound proof glass on the sliding doors, high quality sound proof ceramic tile flooring and ceiling fans
• Complex amenities include a resort pool set in sub-tropical native gardens, a sundeck and lounge, an outdoor shower, two built-in outdoor kitchens and bike storage
• 14 minutes to the airport, 20 minutes to Maroochydore and 25 minutes to Noosa
Building size
156 sqm (approx)
















































